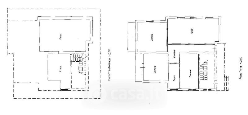
Appartamento in vendita Strada Fabrianese , Perugia
Salva
Casa.it
1/41
  • Street View
  • Map