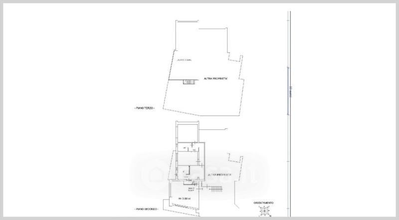
Appartamento in vendita Via Placido Acquacotta , Perugia
Salva
Casa.it
1/32
  • Street View
  • Map