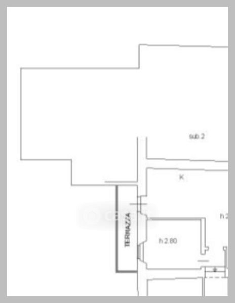
Appartamento in vendita Strada Tiberina Nord , Perugia
Salva
Casa.it
1/32
  • Street View
  • Map