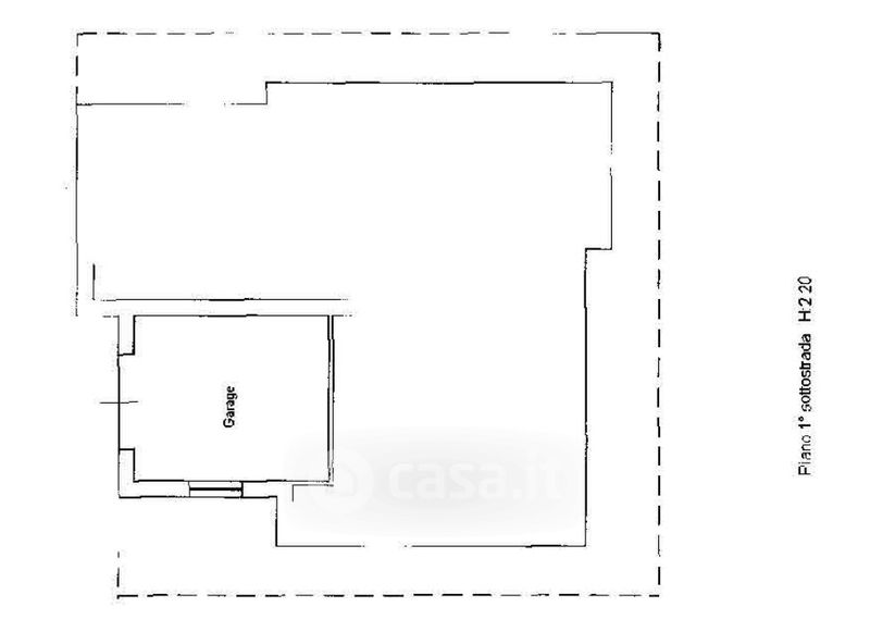
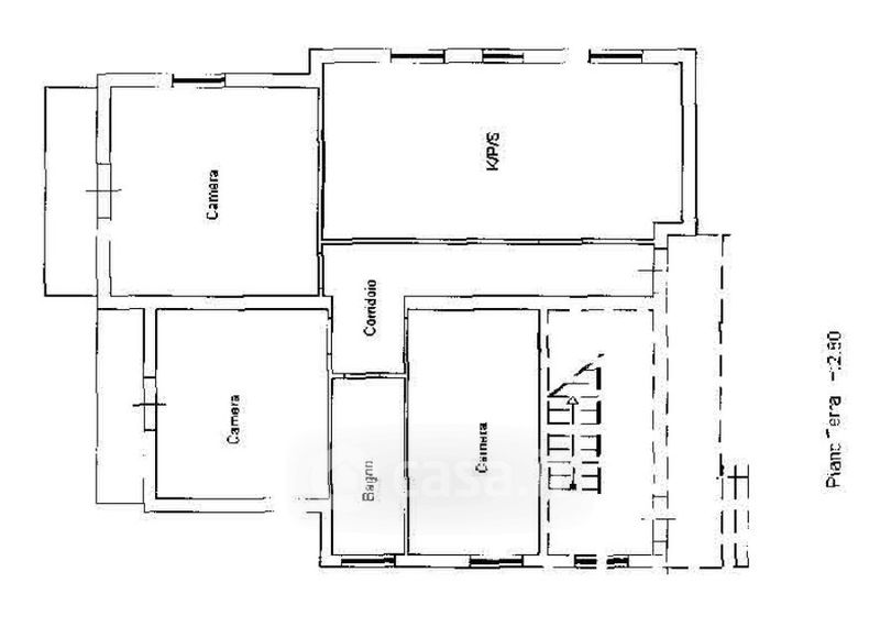
Appartamento in vendita Piazza Piediluco , Perugia
Salva
Casa.it
1/33
  • Street View
  • Map