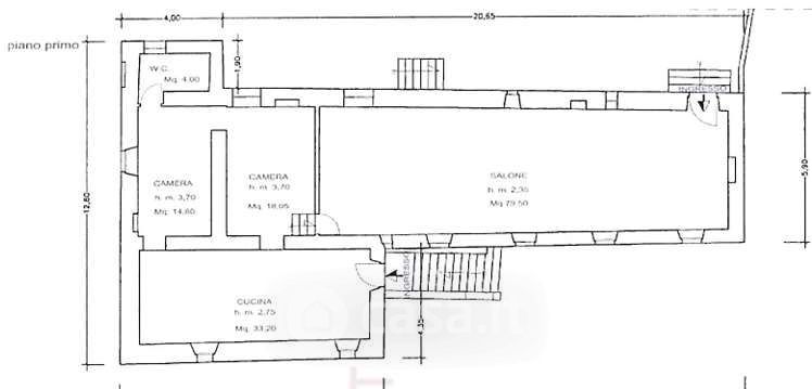
Appartamento in vendita Piaggia dei Filosofi 23, Perugia
Salva
Casa.it
1/25
  • Street View
  • Map