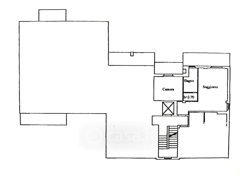
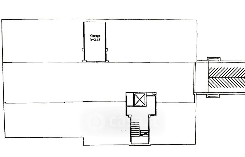
Appartamento in vendita Via San Paolo , Spoleto
Salva
Casa.it
1/27
  • Street View
  • Map