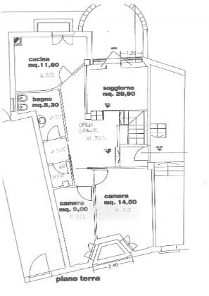
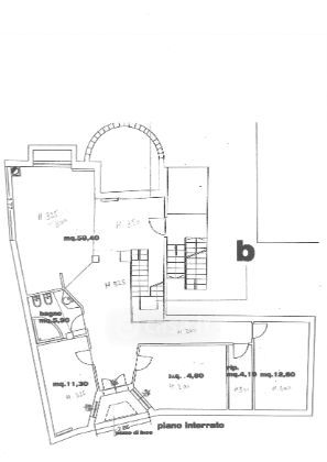
Appartamento in vendita Via degli Artieri , Terni
Salva
Casa.it
1/46
  • Street View
  • Map