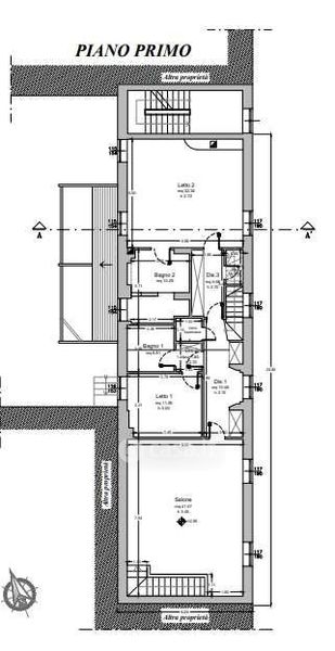
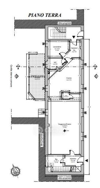
Appartamento in vendita Via Fiume , Terni
Salva
Casa.it
1/25
  • Street View
  • Map