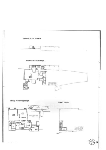
Appartamento in vendita Via L. Morandi 5, Todi
Salva
Casa.it
1/53
  • Street View
  • Map