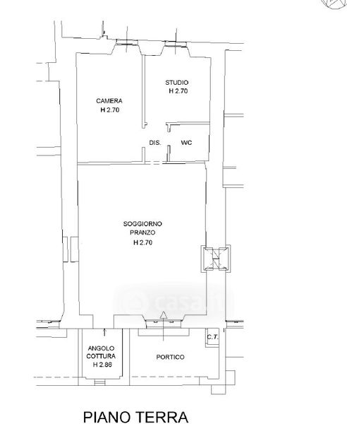
Appartamento in vendita Località Quadro , Todi
Salva
Casa.it
1/56
  • Street View
  • Map