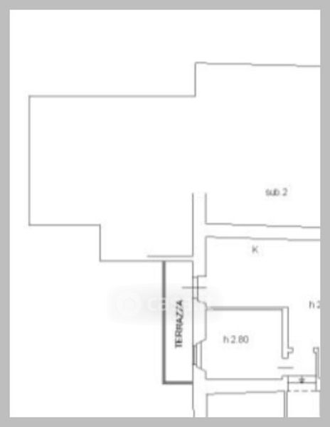
Appartamento in vendita Via della Barca , Umbertide
Salva
Contatta l'inserzionista
Casa.it