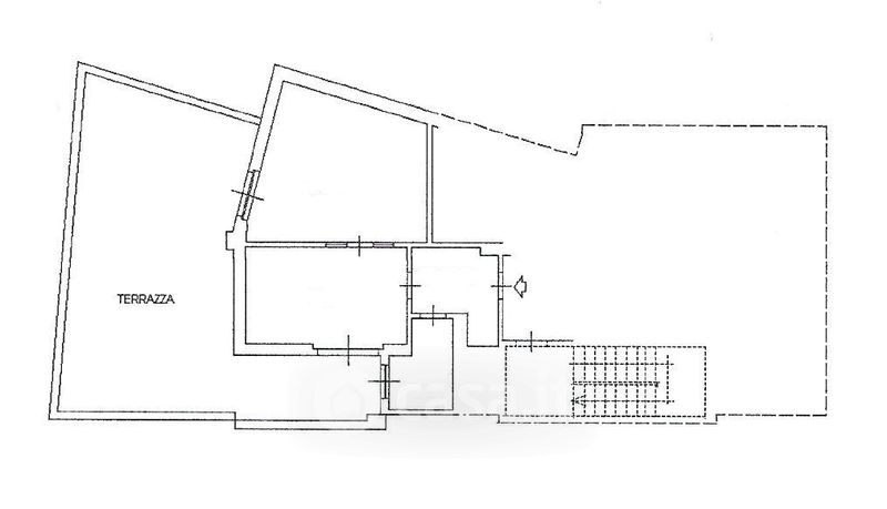
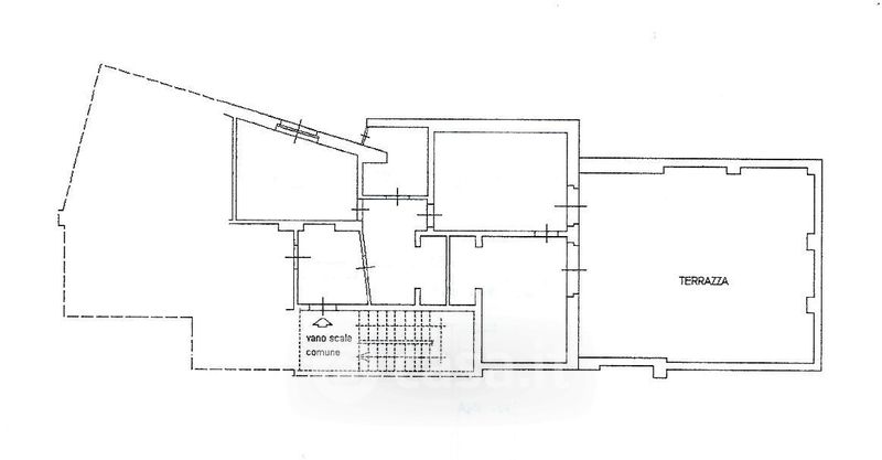
Appartamento in vendita Via Carlo Promis 3, Aosta
Salva
Casa.it
1/24
  • Street View
  • Map