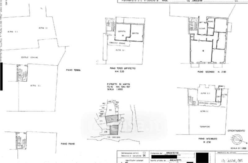
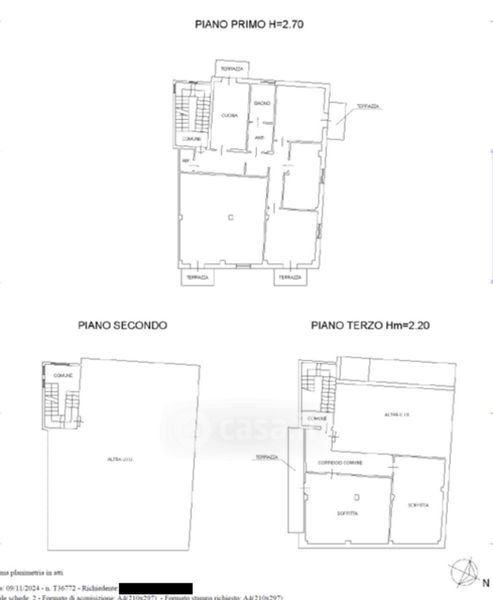
Appartamento in vendita Via Crociera 25, Arsiè
Salva
Casa.it
1/33
  • Street View
  • Map