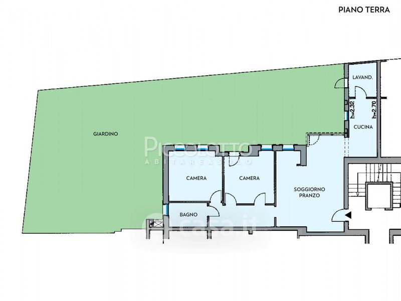
Appartamento in vendita Via Jacopo Da Ponte , Asolo
Salva
Casa.it
1/14
  • Street View
  • Map