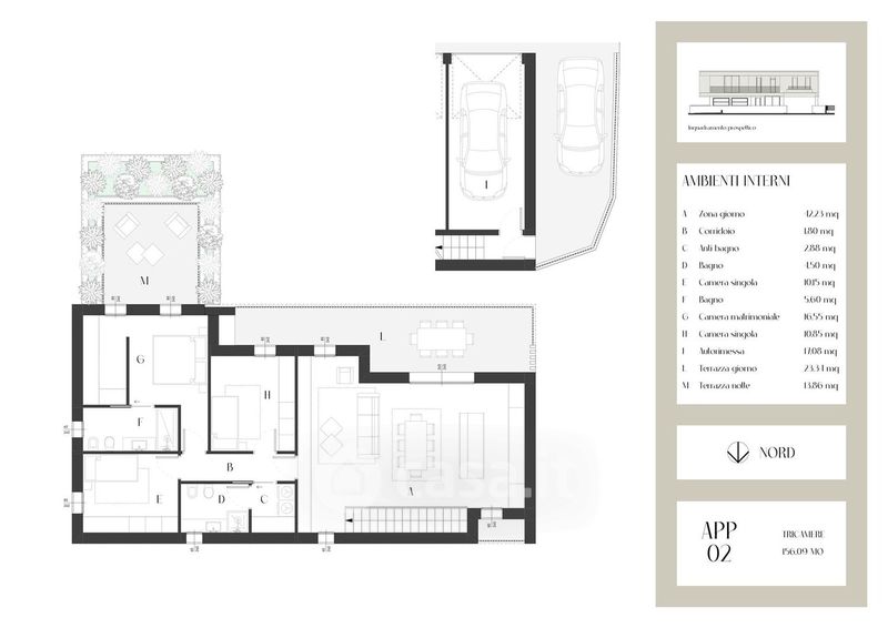
Appartamento in vendita Via Milano 22, Bassano del Grappa
Salva
Contatta l'inserzionista
Casa.it