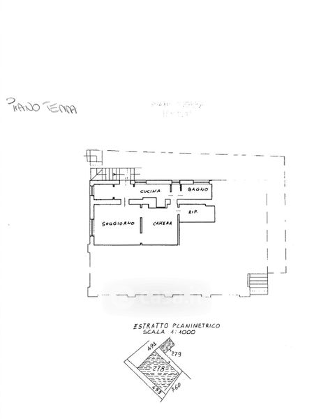
Appartamento in vendita Via Simon da Cusighe 14, Belluno
Salva
Casa.it
1/14
  • Street View
  • Map