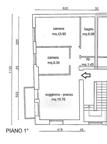
Appartamento in vendita Via Venezia , Borca di Cadore
Salva
Casa.it
1/19
  • Street View
  • Map