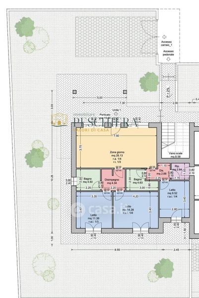
Appartamento in vendita Via XI Aprile 1848 , Castelnuovo del Garda
Salva
Casa.it
1/10
  • Street View
  • Map