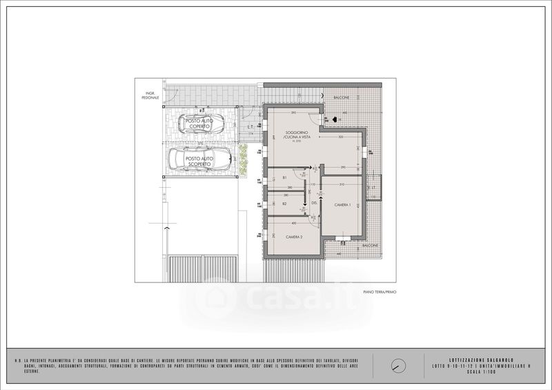
Appartamento in vendita Via Ada Negri , Castelnuovo del Garda
Salva
Casa.it
1/11
  • Street View
  • Map