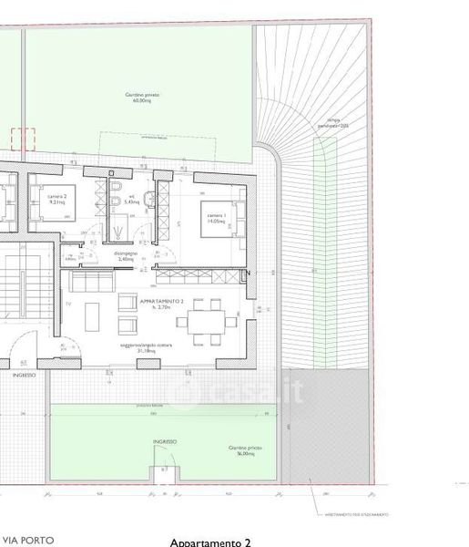
Appartamento in vendita Via Porto , Cavaion Veronese
Salva
Casa.it
1/15
  • Street View
  • Map