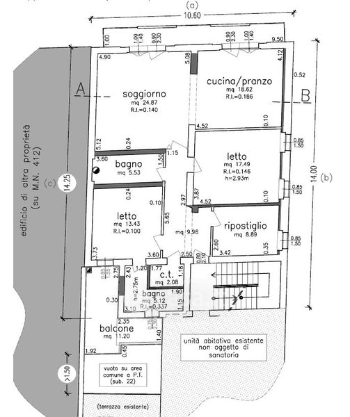
Appartamento in vendita Via Borghetto 2, Cerea
Salva
Casa.it
1/22
  • Street View
  • Map