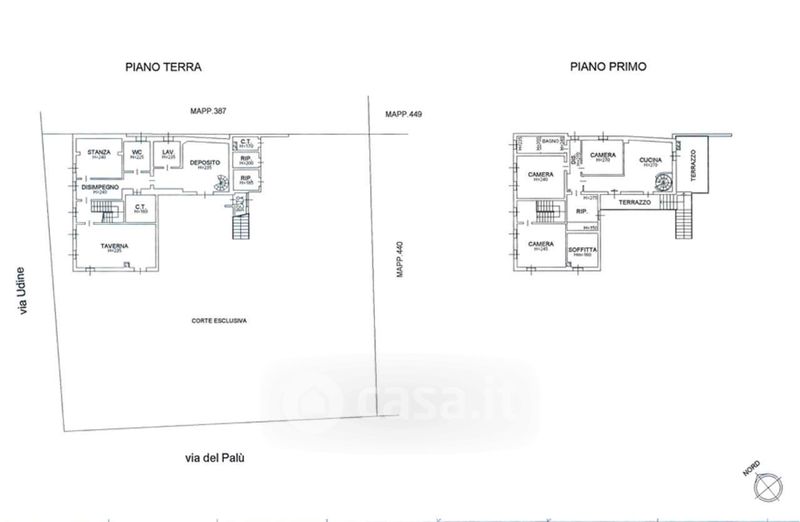
Appartamento in vendita Via del Palu 1, Cinto Caomaggiore
Salva
Casa.it
1/34
  • Street View
  • Map