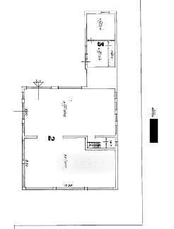
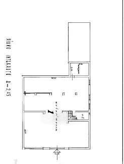
Appartamento in vendita Via Monte Ortigara , Colceresa
Salva
Casa.it
1/39
  • Street View
  • Map