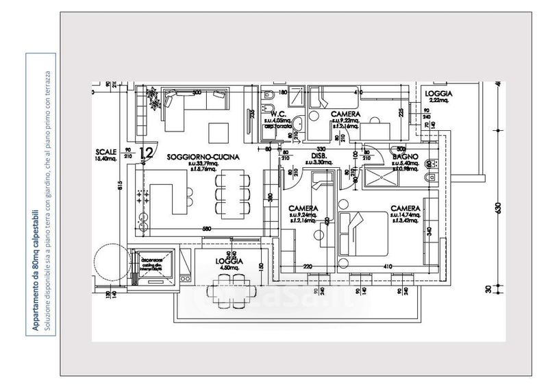
Appartamento in vendita Via Daniele Manin , Conegliano
Salva
Casa.it
1/17
  • Street View
  • Map