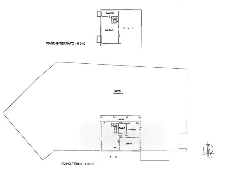
Appartamento in vendita Via Jacopo da Ponte 30, Dueville
Salva
Casa.it
1/27
  • Street View
  • Map