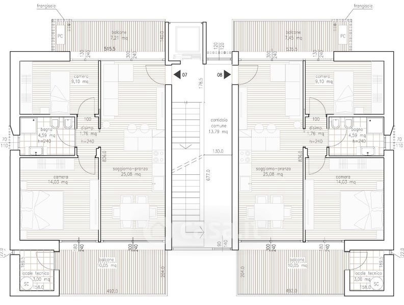
Appartamento in vendita Piazza Milano , Jesolo
Salva
Casa.it
1/12
  • Street View
  • Map