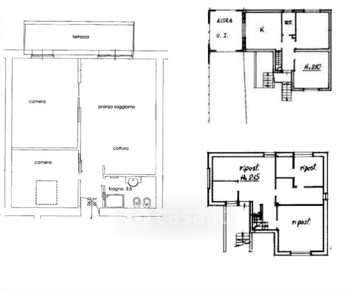
Appartamento in vendita Via Rissette 16, Lazise
Salva
Casa.it
1/31
  • Street View
  • Map