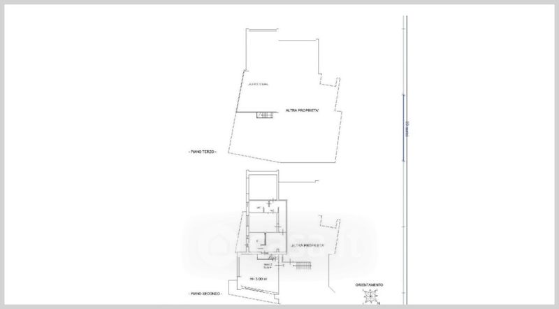
Appartamento in vendita Via Codalunga , Legnago
Salva
Casa.it
1/37
  • Street View
  • Map