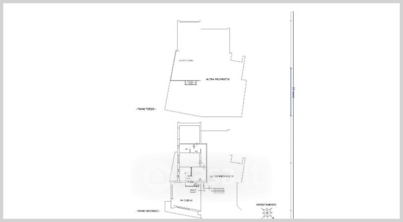
Appartamento in vendita Piazzale Ponte Fior di Rosa , Legnago
Salva
Casa.it
1/32
  • Street View
  • Map