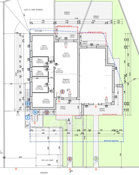
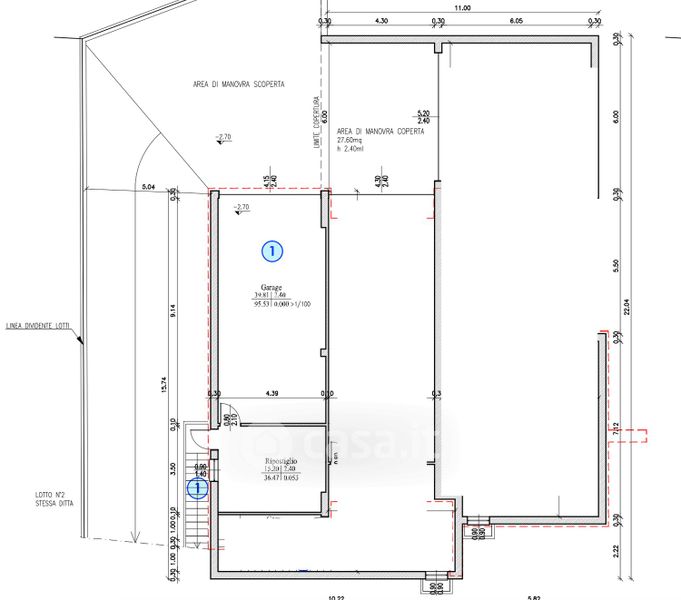
Appartamento in vendita Via Ca' Crosara , Malo
Salva
Casa.it
1/17
  • Street View
  • Map