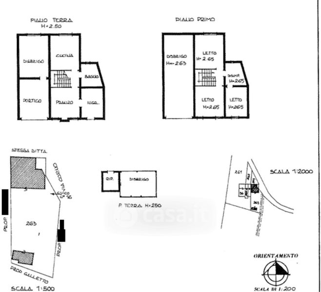
Appartamento in vendita Via Corno 16, Megliadino San Vitale
Salva
Casa.it
1/29
  • Street View
  • Map