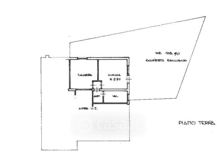
Appartamento in vendita Via della Vittoria , Mirano
Salva
Casa.it
1/12
  • Street View
  • Map