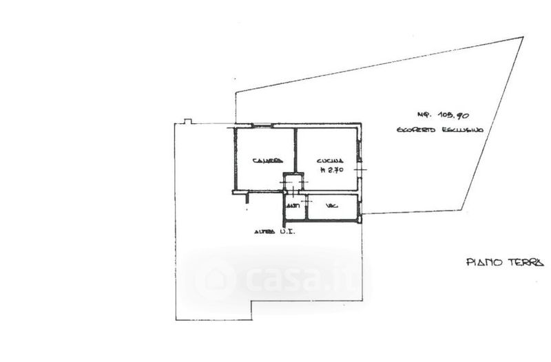
Appartamento in vendita Via della Vittoria 102, Mirano
Salva
Casa.it
1/13
  • Street View
  • Map