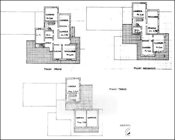
Appartamento in vendita Via della Fontana 6, Monteforte d'Alpone
Salva
Casa.it
1/32
  • Street View
  • Map