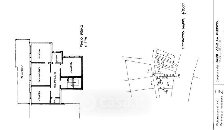
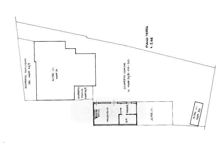
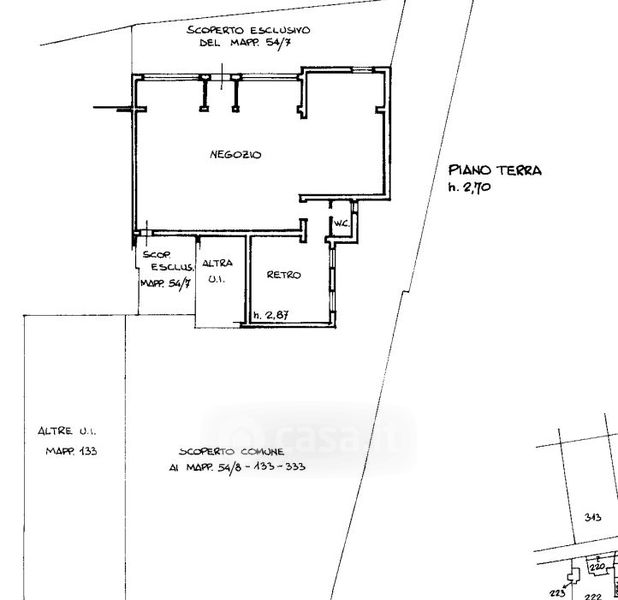
Appartamento in vendita Via Cà Memo , Noventa di Piave
Salva
Casa.it
1/11
  • Street View
  • Map