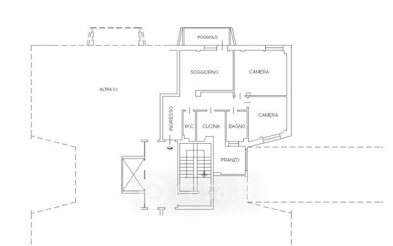
Appartamento in vendita LIVORNO 5, Padova
Salva
Casa.it
1/16
  • Street View
  • Map