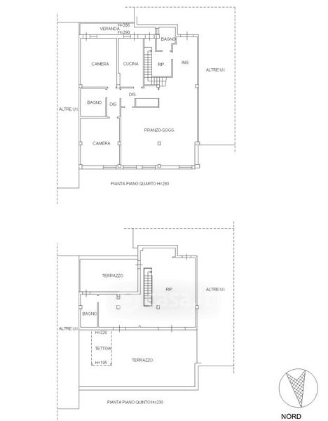
Appartamento in vendita Corso Vittorio Emanuele II , Padova
Salva
Casa.it
1/13
  • Street View
  • Map