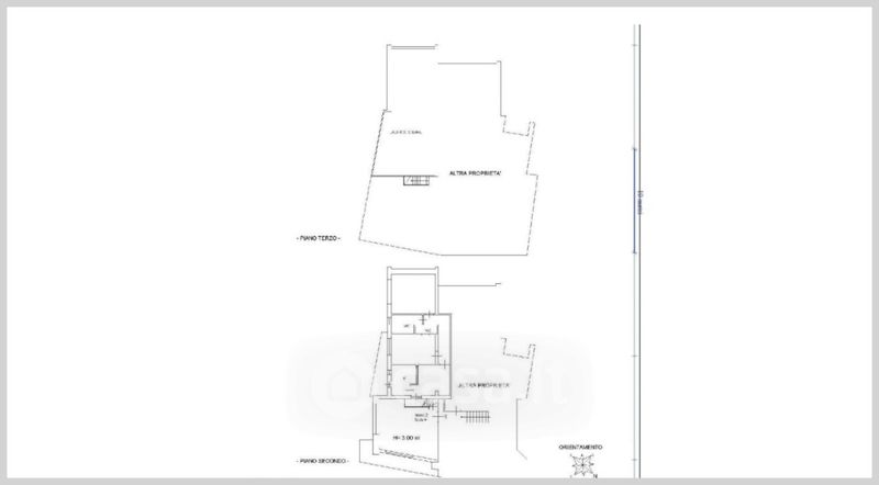
Appartamento in vendita Via Dante di Nanni , Padova
Salva
Casa.it
1/37
  • Street View
  • Map