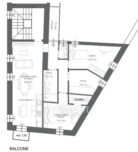
Appartamento in vendita Via Madonna , Pescantina
Salva
Casa.it
1/15
  • Street View
  • Map