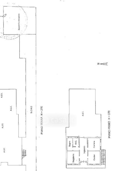
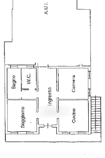
Appartamento in vendita Via Noalese Nord 1, Pianiga
Salva
Casa.it
1/22
  • Street View
  • Map