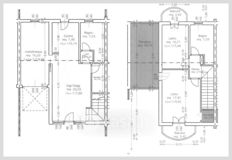
Appartamento in vendita Via Antonio Gramsci , Porto Tolle
Salva
Casa.it
1/39
  • Street View
  • Map