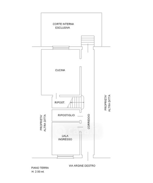
Appartamento in vendita Via Dosso Faiti 5, Rovigo
Salva
Casa.it
1/38
  • Street View
  • Map