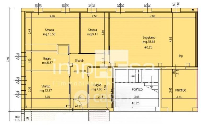
Appartamento in vendita Via Montegrappa , Salzano
Salva
Casa.it
1/17
  • Street View
  • Map