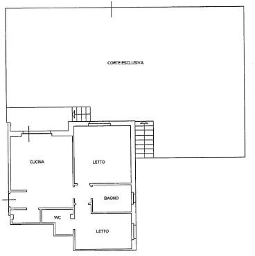
Appartamento in vendita Corso Venezia , San Bonifacio
Salva
Casa.it
1/30
  • Street View
  • Map