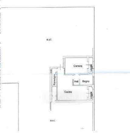
Appartamento in vendita Via Valsugana , San Giorgio in Bosco
Salva
Casa.it
1/27
  • Street View
  • Map