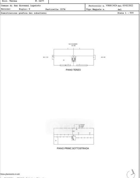
Appartamento in vendita Via IV Novembre , San Giovanni Lupatoto
Salva
Casa.it
1/40
  • Street View
  • Map