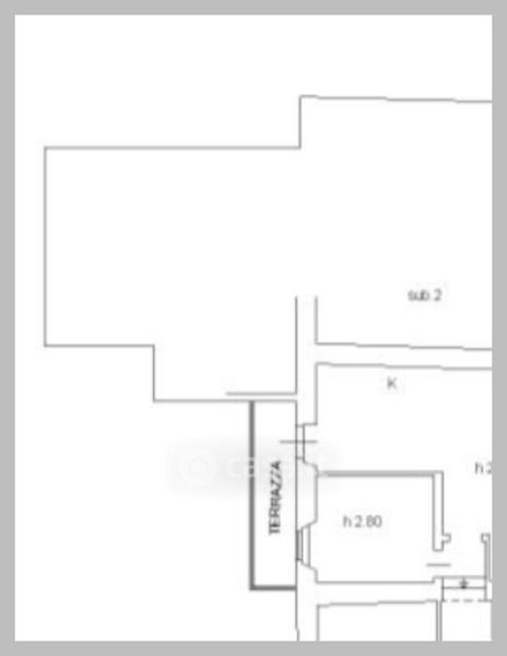
Appartamento in vendita Viale dei Ginepri , San Michele al Tagliamento
Salva
Casa.it
1/32
  • Street View
  • Map