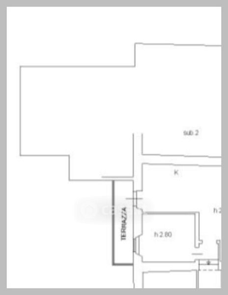
Appartamento in vendita Via Manuzza , San Michele al Tagliamento
Salva
Casa.it
1/32
  • Street View
  • Map