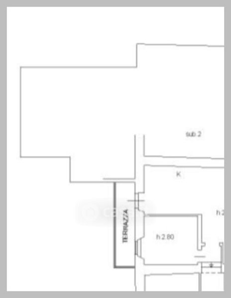
Appartamento in vendita Via Manuzza , San Michele al Tagliamento
Salva
Contatta l'inserzionista
Casa.it