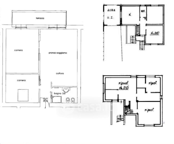
Appartamento in vendita Via Giacomo Matteotti 3, Sant'Ambrogio di Valpolicella
Salva
Casa.it
1/31
  • Street View
  • Map